


沈阳综合体
位置:辽宁省沈阳市
时间:2013年7月
面积:14.7万平方米

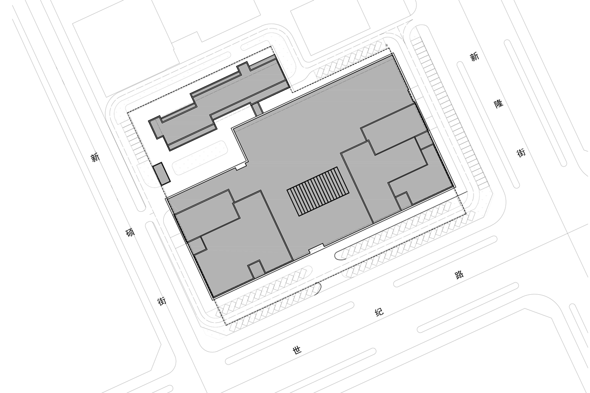
项目基地位于沈阳市东陵区(浑南新区)距离沈丹高速400m,距离最近地铁站约420m,距离沈水路5km,距离浑河3.1km。基地南侧紧邻同方世纪城, 东南侧为沈阳市东陵区财政局和沈阳市浑南新区管委会, 东侧为自主知识产权园,西侧为高斯街, 北侧近邻高迎路.
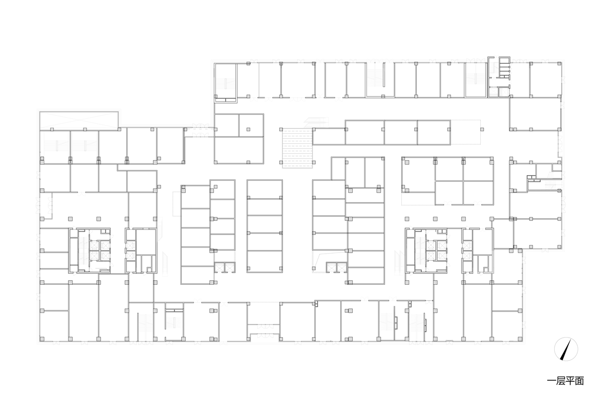
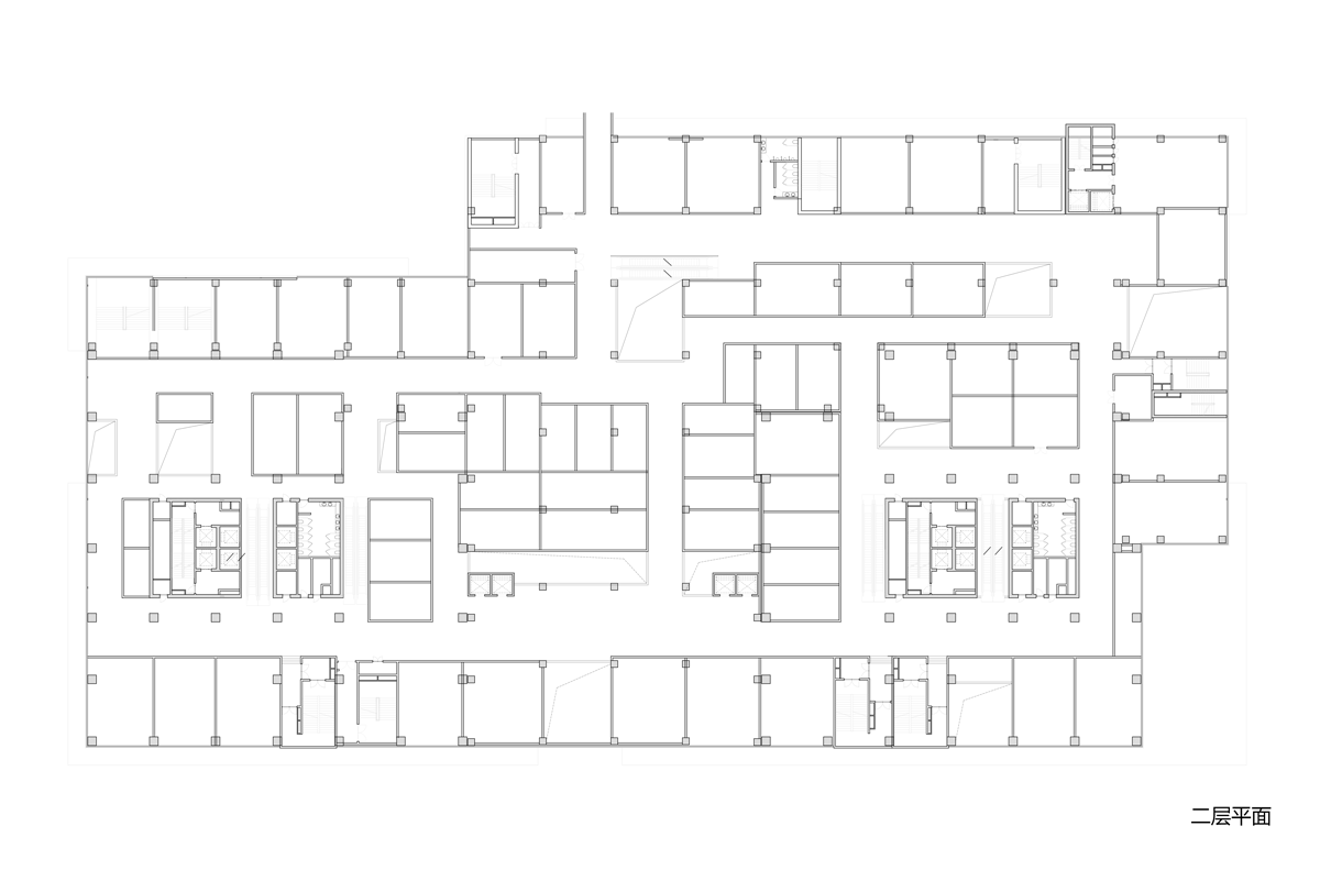
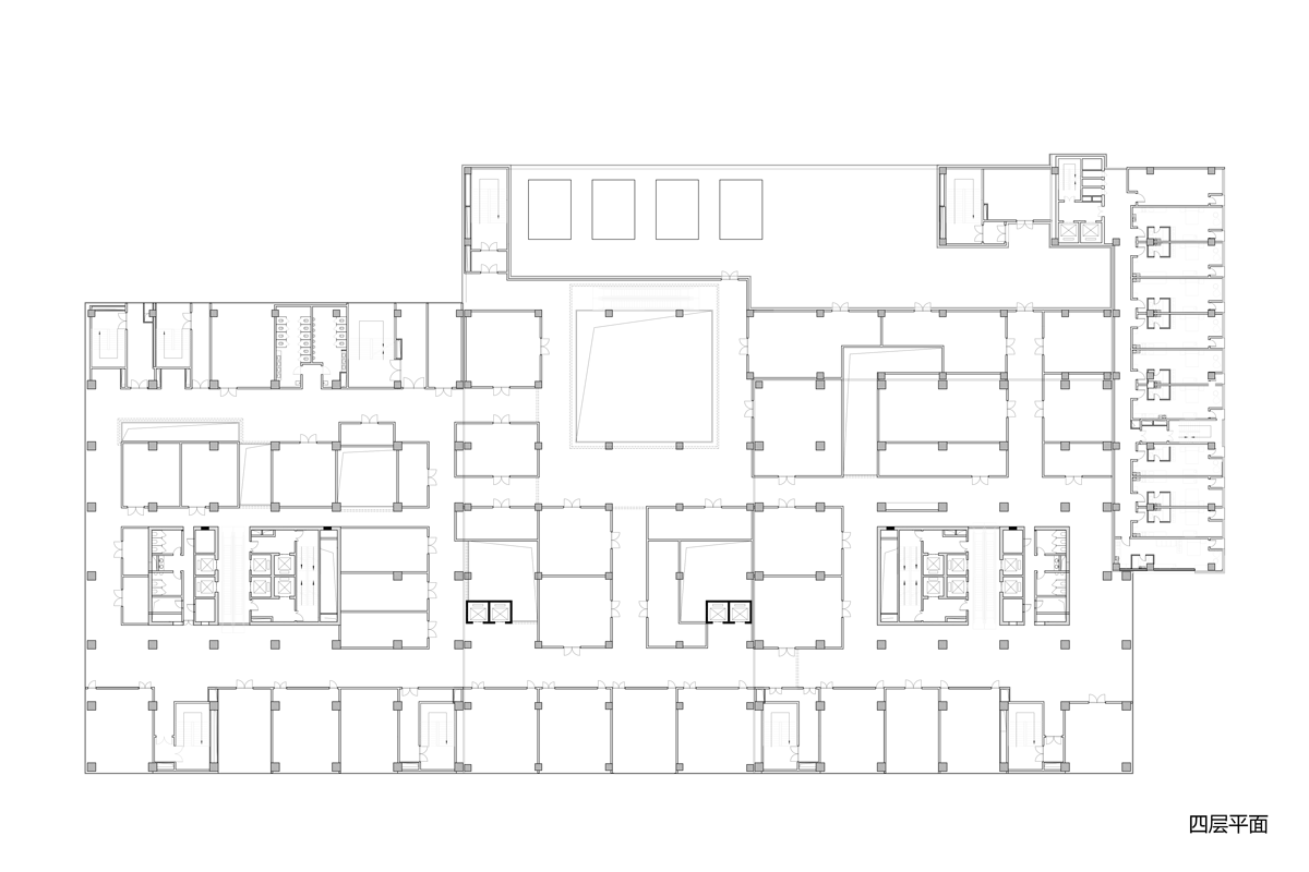
本项目建设用地面积:19933.3平方米。总建筑面积149801平方米,地下建筑面积:30656平方米,地上建筑面积:119145平方米,商业建筑面积:40913.79平方米,办公建筑面积:78231.21平方米,停车位530辆.











京ICP备11015044号-1