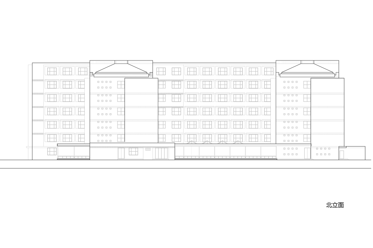
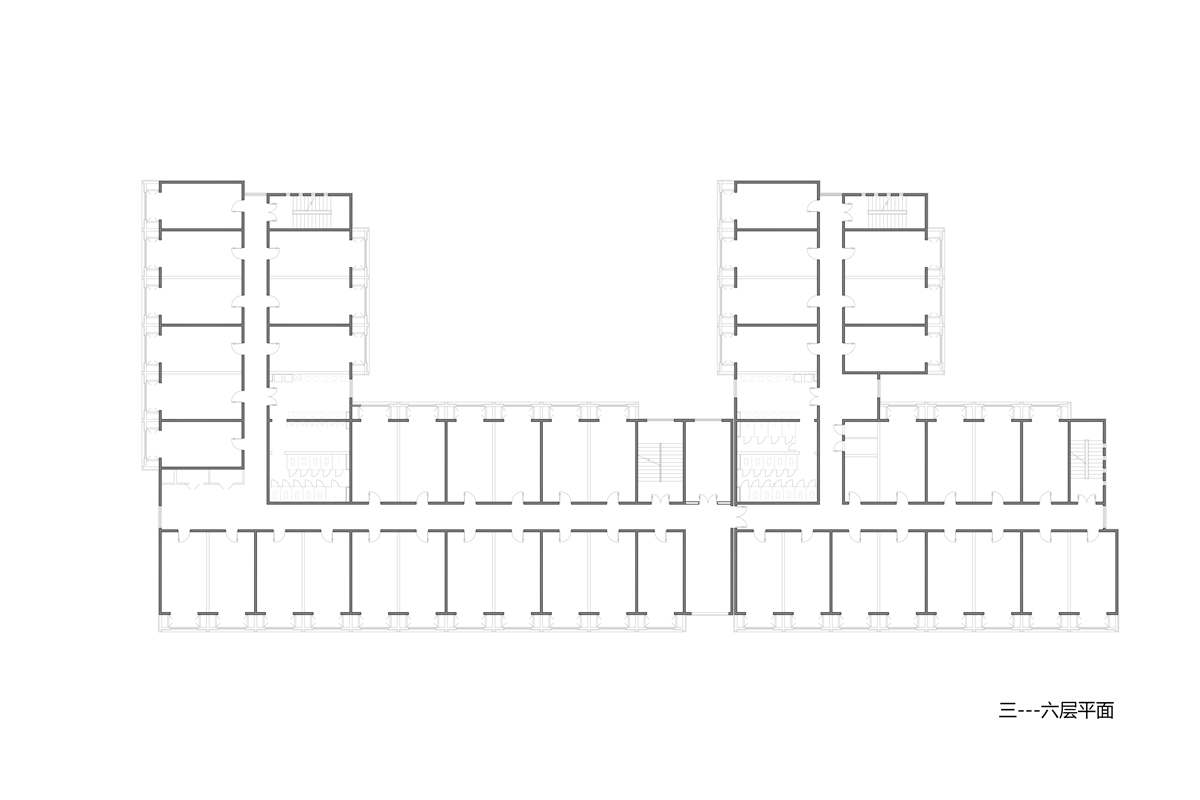
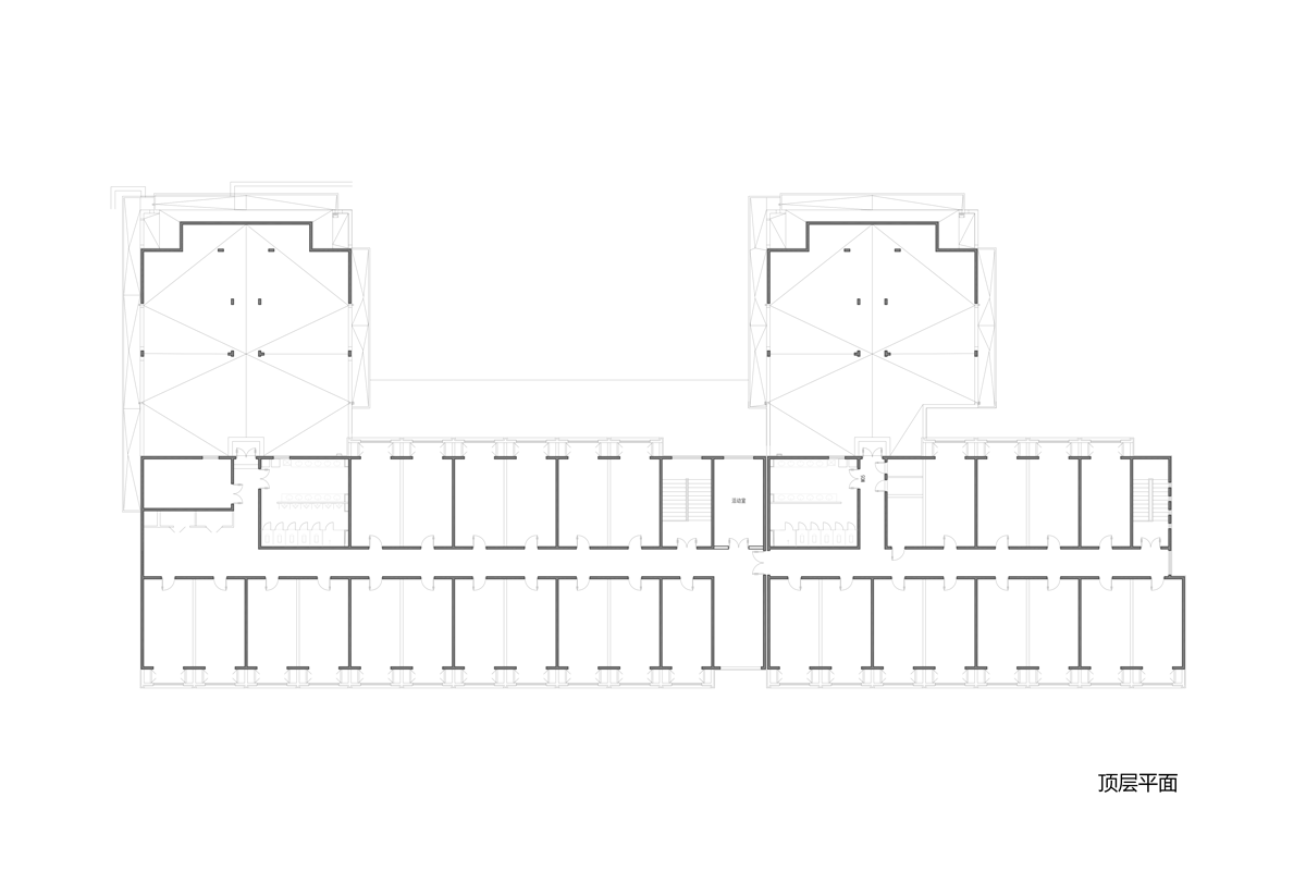
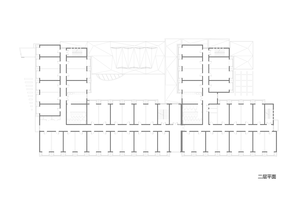
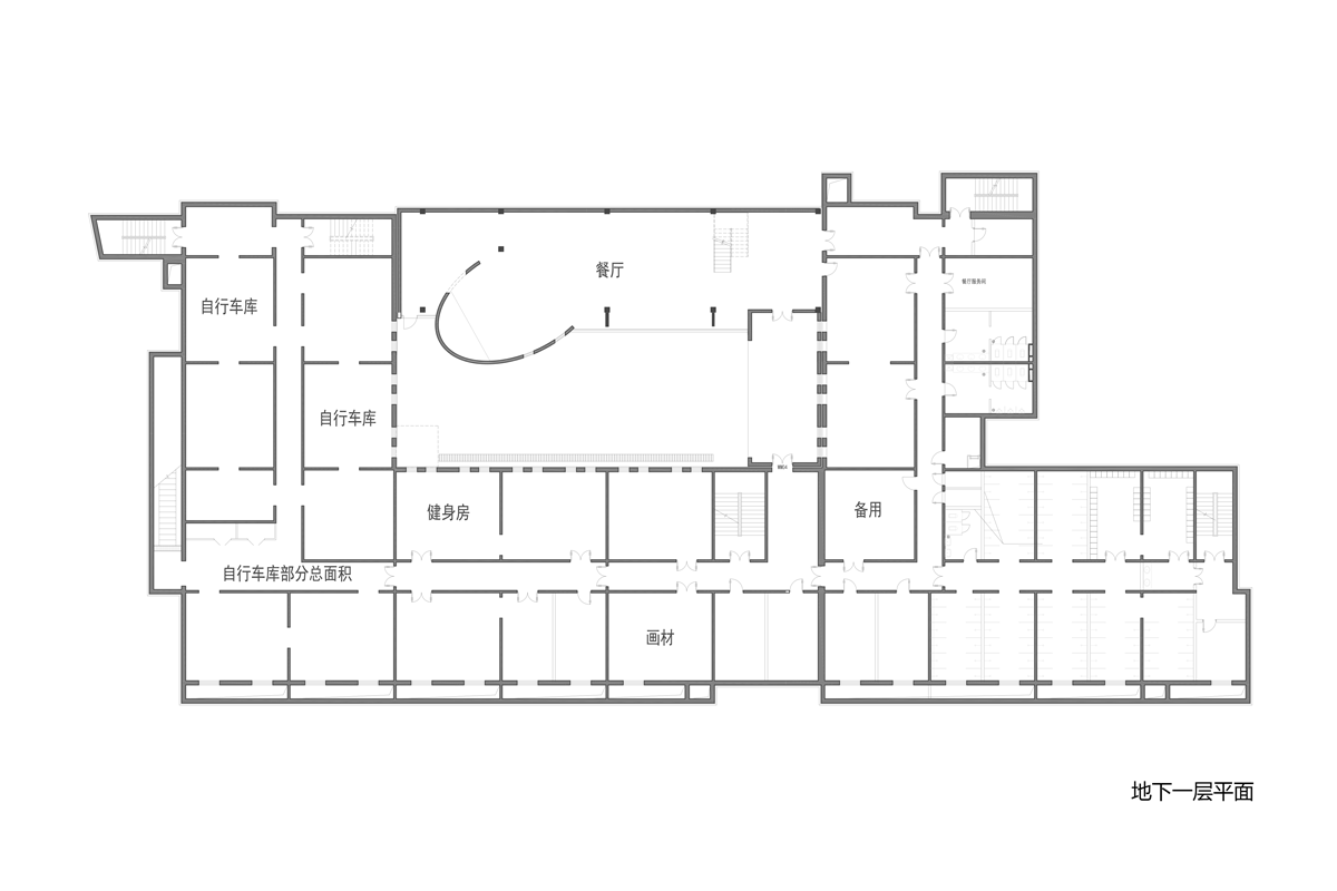
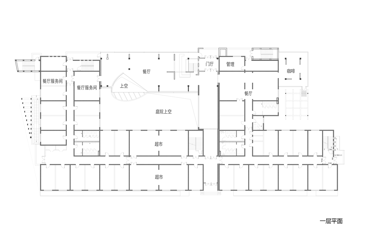
中央美术学院宿舍楼

中央美术学院宿舍

位置:北京市朝阳区中央美术学院学院内

时间:2004年5月

建设内容:公寓

建设规模:1.7万平方米

建设单位:中央美术学院

项目负责人:程大鹏

项目名称:中央美术学院宿舍楼

项目位置:北京市朝阳区中央美术学院学院内

时间:2004年5月

建设内容:公寓

建设规模:1.7万平方米

建设单位:中央美术学院

项目负责人:程大鹏