建筑
architecture
艺术
art
博物馆
museum
活动
events
我们
about us
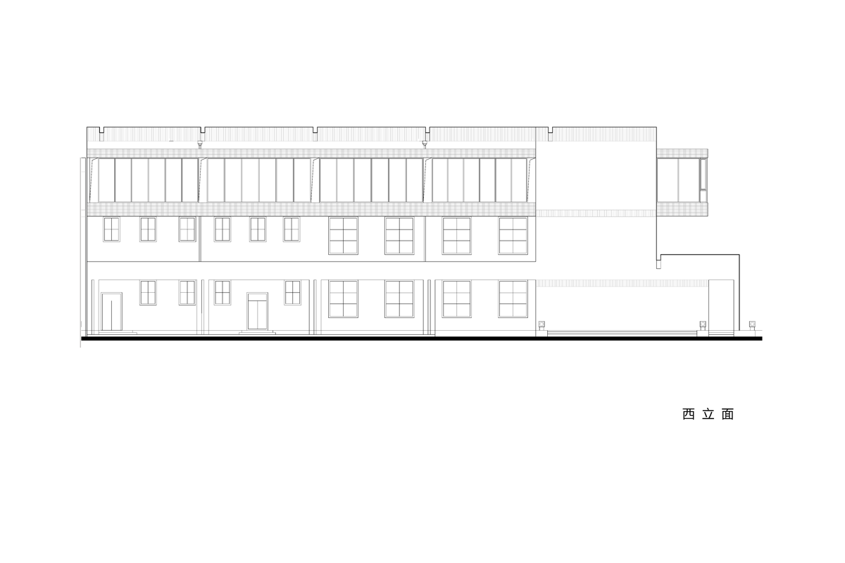
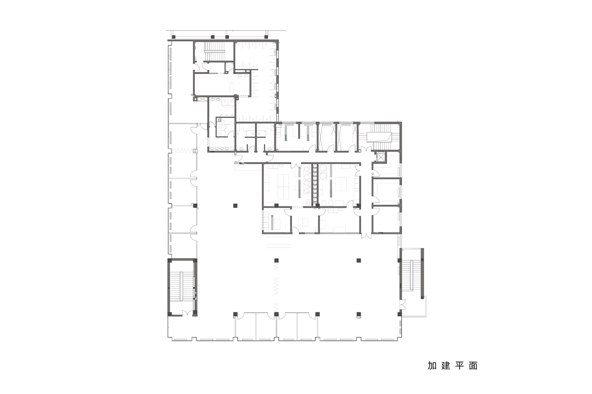
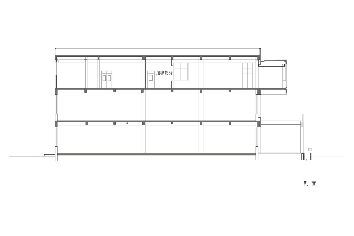
中央美术学院食堂扩建
中央美术学院食堂扩建
位置:北京市朝阳区
时间:2004年2月
加建面积:1311.5平方米
Copyright © 2014 Do 度·联体艺术设计机构
京ICP备11015044号-1