

工程名称:云冈石窟文物保护中心
类型:办公楼
规模:6170平方米
位置:大同市云冈石窟景区风貌保护区内
委托方:云冈石窟研究院
状态:主体完成建设,室内及周边景观施工中
项目设计时间:2016年3月-2018年12月
工程名称:云冈石窟文物保护中心
类型:办公楼
规模:6170平方米
位置:大同市云冈石窟景区风貌保护区内
委托方:云冈石窟研究院
主持设计师:程大鹏
状态:主体完成建设,室内及周边景观施工中
项目设计时间:2016年3月-2018年12月

云冈石窟文物保护中心承载着保护云冈文化遗产和进行现代化科研工作的重要使命。其背景复杂:历史和文化、空间和公共交通等问题都在这里交织。我们让这个建筑能够最大限度的创造科研人员和历史文化之间的交流平台,提供科学与文化并存的学术研究氛围。从建筑单体上,该方案不仅和周边环境协调共生,特殊处理的拱形外皮又能形成建筑的独特符号,突出特有的云冈元素,提升区域整体形象。最终该项目在发扬文化云冈、科学云冈、绿色云冈的同时,使云冈石窟进一步发挥世界文化遗产的作用。
▼效果图




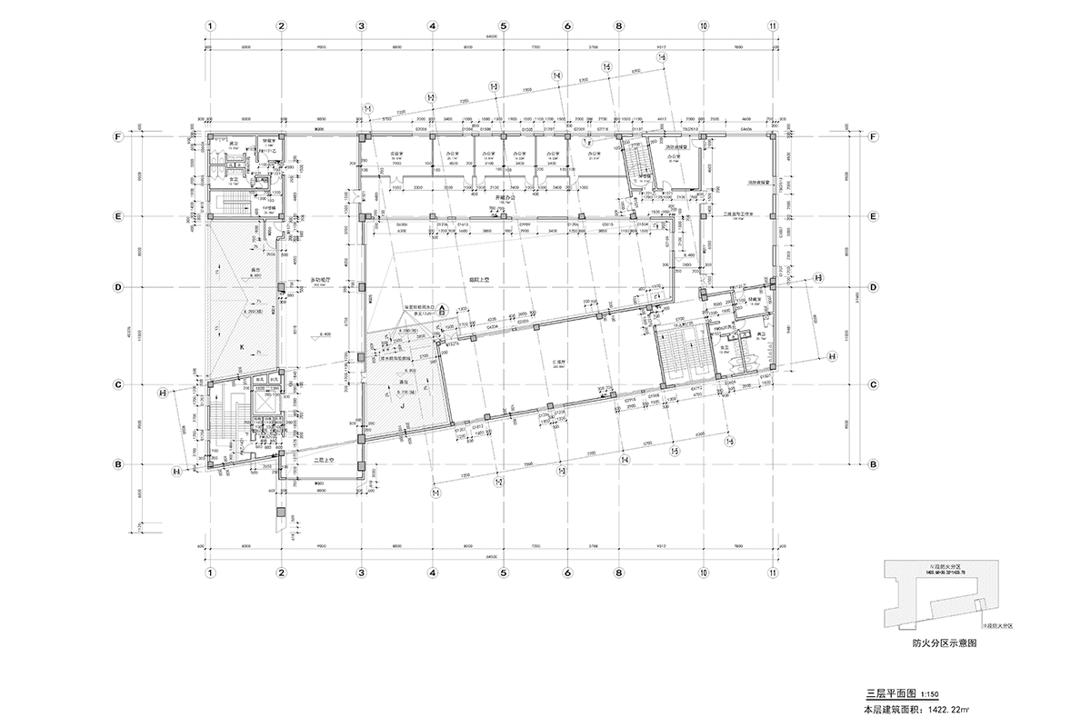
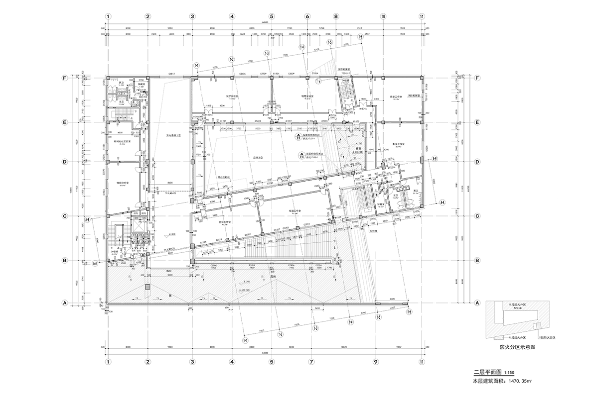
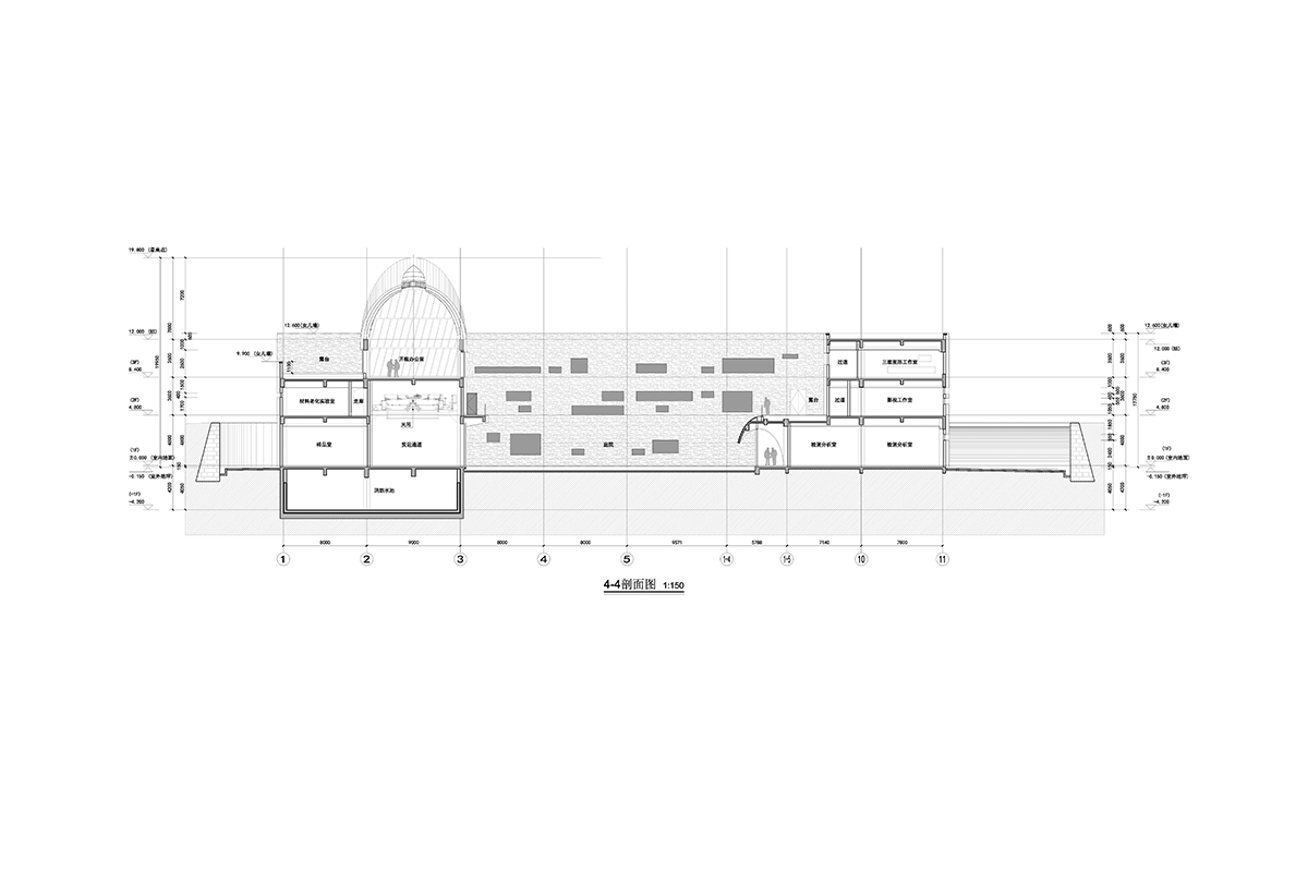
▼设计平面图






京ICP备11015044号-1