


用友展示会议中心
项目名称:用友集团会展中心
类型:竞标
委托方:用友软件股份有限公司
规模:9940平米
位置:北京市海淀区北清路
状态:建设中
项目起止时间:2009年8月-
介绍:
用友软件园位于北京中关村永丰科技园内,永丰路与北清路交接处。整个园区建筑共有9个部分组成,总建筑面积将近40万平米,建成后将从成为亚洲最大的软件技术基地。
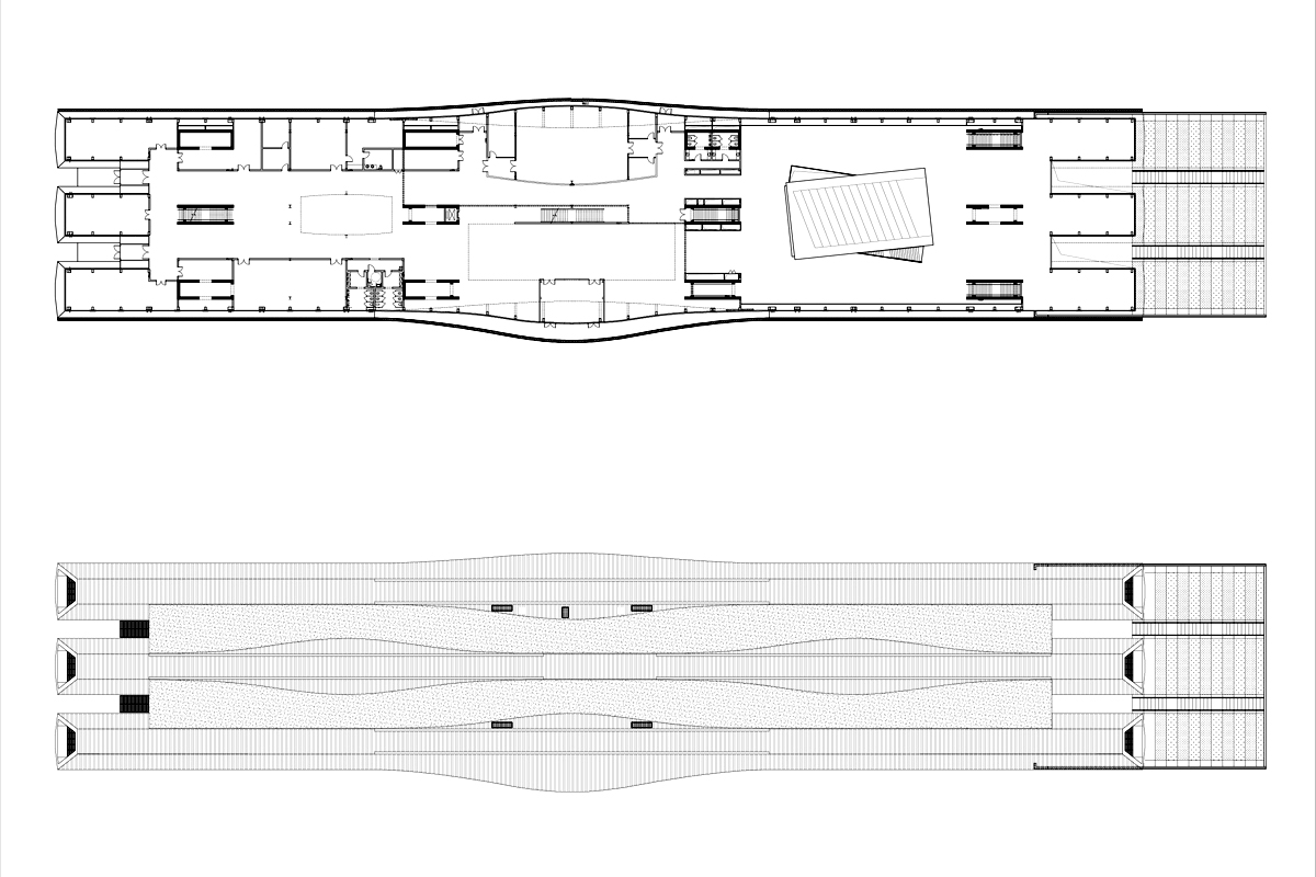
本建筑总建筑面积9939平米,地上一层,局部夹层。功能为展示、会议、办公,未来将承担用友集团的客户接待、集团发展历程展示、产品展示演示、会议接待、旅游接待等功能。
用友软件,是亚太本土最大的管理软件提供商,是中国最大的管理软件提供商,其企业文化注重科学管理、讲究实效、充满理性。用友软件园内的已建成使用的和拟建设的建筑,造型现代简洁,理性务实,同时具有一点民族特征。
用地是一个狭长地块,周围都是简洁务实的、功能主义的建筑。本建筑对于企业来说是一个礼仪性建筑,它是企业的会客厅、博物馆、展览馆。从功能定位上,它应该成为园区的焦点,表现用友文化的另一面——浪漫诗意,丰富整个园区的建筑内涵,使园区成为高科技园区、生态园区,而且是一个人文园区。
本项目的设计创意是“用友江山”。三个起伏的长条造型,参差错落,状如山水。

用友集团会展中心
北京海淀区
2009-2012
“用友江山”主题展览中心,位于亚洲最大软件技术基地北京中关村永丰科技园内的用友软件园。 用友当属国内软件企业的龙头老大,作为展示企业规模实力与成就的展览中心,本项目的设计创意是围绕“用友江山”展开,用地处于用友园区腹地,三个波浪状连绵起伏的长条造型,长度逾330米,宽度仅30米,参差错落,状如山水,昭示其纳百川,统天下的企业雄心。
总建筑面积9939平米,地上一层,局部夹层。功能为展示、会议、办公,未来将承担用友集团的客户接待、集团发展历程展示、产品展示演示、会议接待、旅游接待等功能。”据悉,该项目于2009年启动,将于2012年竣工。





















京ICP备11015044号-1